新浪微博| 收藏本站| 網站地圖| 售后支持

您好,歡迎來到德亞官方網站!

德亞

工業級產品構建智慧停車門禁專業車輛管理系統交鑰匙工程解決方案服務商

全國服務熱線:400-666-8900

當前位置首頁 » 新聞資訊 » 行業資訊 » 三種常見的智能停車場系統安裝形式

三種常見的智能停車場系統安裝形式

返回列表 來源:德亞 查看手機網址
掃一掃!三種常見的智能停車場系統安裝形式掃一掃!
瀏覽:- 發布日期:2021-07-26 14:50:13【

今天德亞小編來和大家說說關于智能停車場系統安裝的三種常見形式,具體如下:

一、智能停車場安全島式安裝方式

即:道路大于7米,安全島放置在道路中間,進出口設備分開安裝,先進行安裝攝像機接著安裝道閘,道閘與像機間隔30cm。

注:
1、像機安裝完成后不能超出安全島邊緣;

2、道閘機箱邊緣與案例邊緣相距5cm。

3、道閘桿正下方不能有金屬物體(如:窨井蓋、導軌、線管經過等)。

 

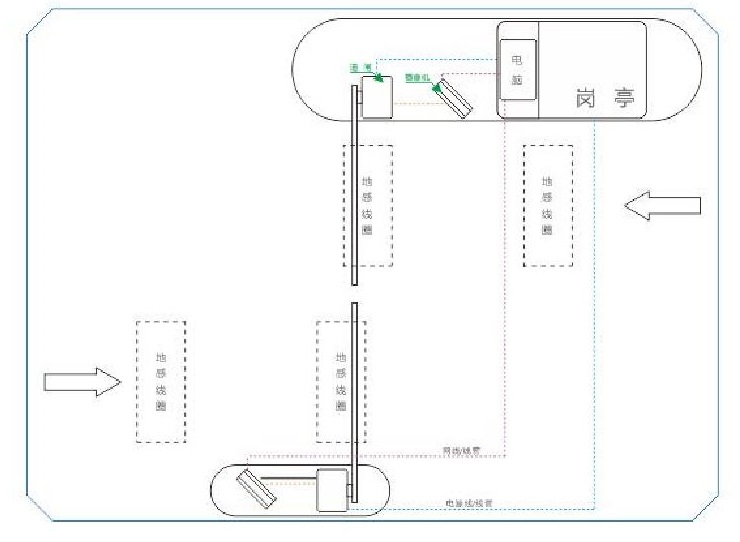
二、智能停車場車牌識別系統單通道安裝方式

即:道路小于6米且大于3米,由單道閘管理,進出設備安裝在道路一側或兩側,道閘與像機間隔30cm。固定設備的安全島可以澆筑也可以不澆筑,根據情況而定,固定好設備即可。

注:
1、像機安裝完成后不得超出安全島邊緣;

2、道閘桿正下方不能有金屬物體(如:窨井蓋、導軌、線管經過等)

智能停車場系統安裝如下圖所示:

車牌識別布局布線圖 單通道式

 

三、智能停車場道閘對開式安裝方式

即:道路大于6米,由雙道閘管理,兩個道閘桿必須在同一水平線上,進出設備安裝在道路兩側,道閘與像機間隔30cm。

注:

1、像機安裝完成后不能超出安全島邊緣;

2、道閘機箱邊緣與案例邊緣相距5cm。

3、道閘桿正下方不能有金屬物體(如:窨井蓋、導軌、線管經過等)

智能停車場系統安裝如下圖所示:

車牌識別布局布線圖 道閘對開式



推薦閱讀

【本文標簽】:停車場系統
【責任編輯】:德亞版權所有:http://www.ok527.com轉載請注明出處

關于我們

蘇州德亞交通技術有限公司 版權所有
地址:蘇州相城區漕湖街道華陽路157號
郵箱:parking@transpeedsg.com

聯系我們

  • 全國服務熱線:400-666-8900
  • 電話:0512-87187667
  • 傳真:0512-87172608
掃描二維碼掃描二維碼