首頁 行業資訊

三種常見的智能停車場系統安裝形式

2021-07-26 14:50:13 

今天德亞小編來和大家說說關于智能停車場系統安裝的三種常見形式,具體如下:

一、智能停車場安全島式安裝方式

即:道路大于7米,安全島放置在道路中間,進出口設備分開安裝,先進行安裝攝像機接著安裝道閘,道閘與像機間隔30cm。

注:
1、像機安裝完成后不能超出安全島邊緣;

2、道閘機箱邊緣與案例邊緣相距5cm。

3、道閘桿正下方不能有金屬物體(如:窨井蓋、導軌、線管經過等)。

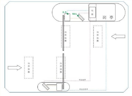
二、智能停車場車牌識別系統單通道安裝方式

即:道路小于6米且大于3米,由單道閘管理,進出設備安裝在道路一側或兩側,道閘與像機間隔30cm。固定設備的安全島可以澆筑也可以不澆筑,根據情況而定,固定好設備即可。

注:
1、像機安裝完成后不得超出安全島邊緣;

2、道閘桿正下方不能有金屬物體(如:窨井蓋、導軌、線管經過等)

智能停車場系統安裝如下圖所示:

車牌識別布局布線圖 單通道式

三、智能停車場道閘對開式安裝方式

即:道路大于6米,由雙道閘管理,兩個道閘桿必須在同一水平線上,進出設備安裝在道路兩側,道閘與像機間隔30cm。

注:

1、像機安裝完成后不能超出安全島邊緣;

2、道閘機箱邊緣與案例邊緣相距5cm。

3、道閘桿正下方不能有金屬物體(如:窨井蓋、導軌、線管經過等)

智能停車場系統安裝如下圖所示:

車牌識別布局布線圖 道閘對開式